Das zentral gelegene Mehrfamilienhaus mit insgesamt sechs vollständig vermieteten Wohneinheiten befindet sich in der ostseenahen Kleinstadt Kröpelin und überzeugt durch seinen gepflegten Gesamtzustand sowie eine nachhaltig stabile Vermietbarkeit. Das im Jahr 1999 fertiggestellte Gebäude wurde fortlaufend instand gehalten und regelmäßig modernisiert, sodass sich die Immobilie heute in einem soliden und werthaltigen Zustand präsentiert.
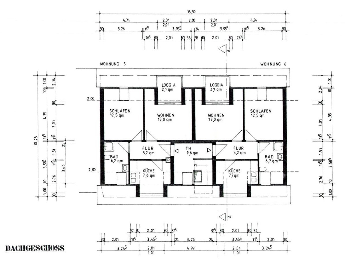
Architektonisch prägend ist das ausgebaute Dachgeschoss mit mehreren markanten Giebelgauben, die dem Gebäude eine ansprechende Silhouette verleihen und zugleich für eine gute Belichtung der Dachgeschosswohnungen sorgen.
Im Rahmen der laufenden Instandhaltung wurde im Jahr 2019 eine moderne Gas-Brennwerttherme installiert. Darüber hinaus erfolgten teilweise Erneuerungen der Sanitäreinrichtungen, wodurch der zeitgemäße Wohnkomfort weiter verbessert wurde.
Durchdachte Grundrissgestaltung
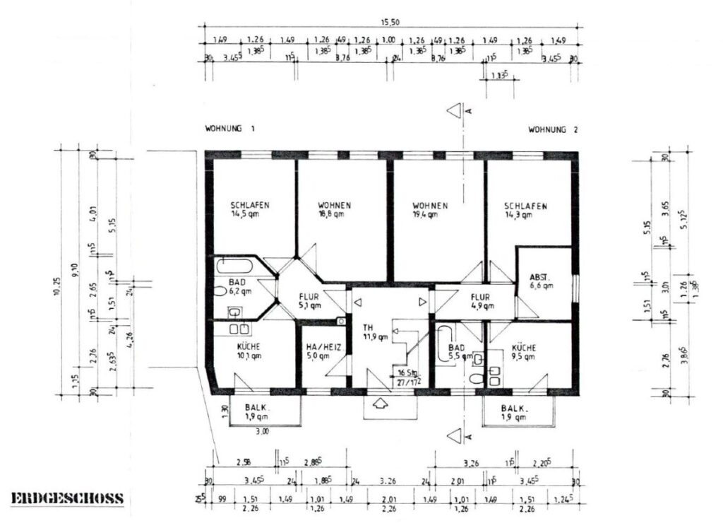
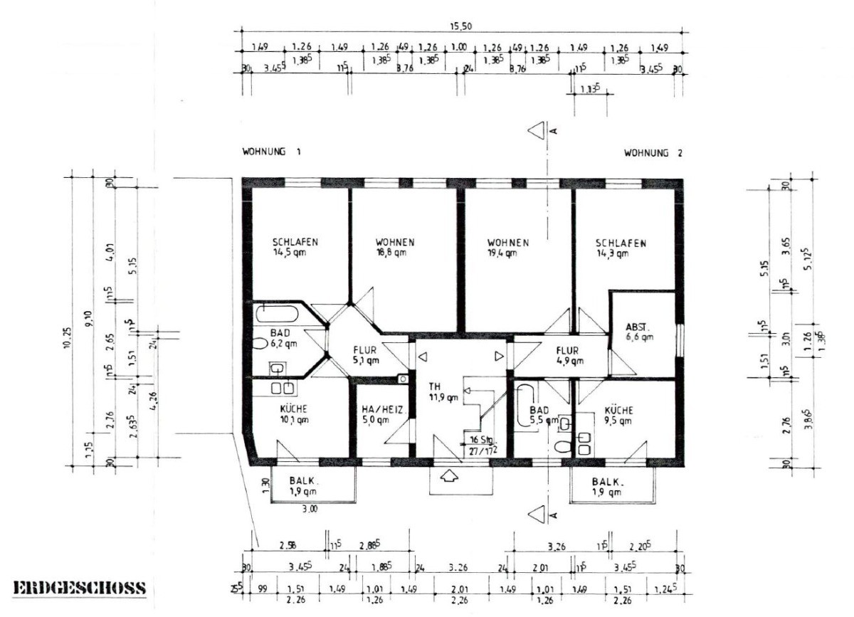
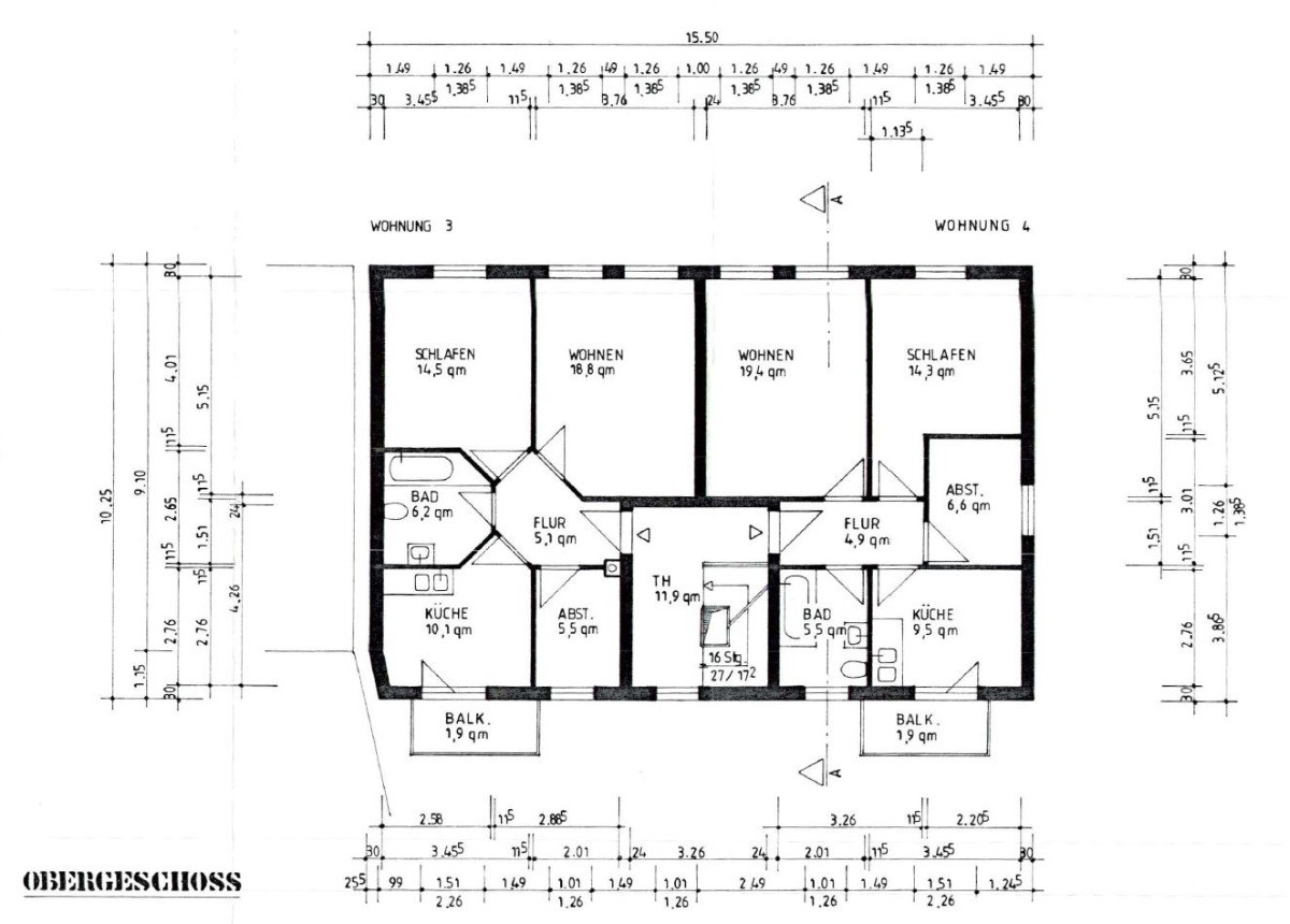
Die sechs Wohneinheiten verteilen sich auf Erdgeschoss, Obergeschoss und Dachgeschoss und überzeugen durch funktionale, gut vermietbare Grundrisse mit klarer Raumstruktur.
Erd- und Obergeschoss
Die Wohnungen im Erd- und Obergeschoss verfügen über:
gut geschnittene Wohnräume mit angenehmer Belichtung
separate Küchenräume
Schlafzimmer mit praktischen Stellflächen
Tageslichtbäder
Balkone bzw. Terrassen mit Ausrichtung zur ruhigen Hofseite
Dachgeschoss
Das Dachgeschoss mit mehreren architektonisch prägnanten Giebelgauben beherbergt zwei Wohneinheiten und bietet:
kompakte, effizient geschnittene Grundrisse
separate Küchen
Tageslichtbäder
zwei Dachloggien als geschützte Außenbereiche
Die bewährte 2-Zimmer-Struktur, die klare Trennung von Wohn- und Schlafbereichen sowie wirtschaftlich geschnittene Wohnflächen bilden eine hervorragende Grundlage für eine langfristig stabile Vermietbarkeit.
Wohnflächen & Aufteilung
Die Wohnungsgrößen gliedern sich wie folgt:
3 Einheiten mit jeweils ca. 62,5 m²
1 Einheit mit ca. 57,5 m²
2 Einheiten mit jeweils ca. 48,5 m²
Insgesamt ergibt sich eine vermietbare Wohnfläche von rund 342 m².
Zusätzliche Ausstattungsmerkmale
Jede Wohneinheit verfügt über einen eigenen Außenstellplatz
Jeweils ein separater Schuppen bietet zusätzlichen Stauraum
Gepflegte Außenanlagen
Ruhige Hofausrichtung der Außenbereiche
Wirtschaftlichkeit
Die Immobilie ist vollständig vermietet und erzielt derzeit eine jährliche Nettokaltmiete von 30.869,64 EUR.
Aufgrund der Lage nahe der Ostseeküste, der soliden Bausubstanz, der durchdachten Grundrisse und des gepflegten Zustands stellt dieses Mehrfamilienhaus eine attraktive und nachhaltige Kapitalanlage dar.
Die anfängliche Bruttorendite beträgt ca. 5,19 % und bietet neben einem stabilen laufenden Ertrag zusätzliches Entwicklungspotenzial in einer stark nachgefragten Region.





















